บ้านชั้นเดียว สไตล์โมเดิร์นแนวร้านกาแฟ 1 ห้องนอน 1 ห้องน้ำ
บ้านชั้นเดียว สไตล์โมเดิร์นแนวร้านกาแฟ 1 ห้องนอน 1 ห้องน้ำ พื้นที่ 103 ตร.ม.
สวัสดีครับ วันนี้เรามีแบบบ้านชั้นเดียว สไตล์โมเดิร์นแนวร้านกาแฟ เหมาะสำหรับครอบครัวขนาดเล็ก และผู้สนใจ เป็นบ้านขนาด 1 ห้องนอน 1 ห้องน้ำ 1 ห้องครัว พื้นที่เฉลียงกว้างขวาง รายละเอียดจะเป็นอย่างไรนั้น ไปติดตามกันเลยครับ
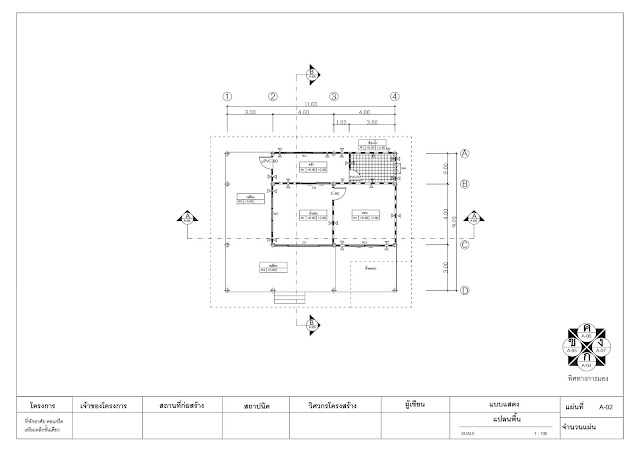
พื้นที่ใช้สอยภายในบ้านขนาด 103 ตารางเมตร ประกอบด้วยห้องต่างๆดังนี้
ห้องรับแขก
ขนาด 4.00 x 4.00 เมตร
ห้องนอน
ขนาด 4.00 x 4.00 เมตร
ห้องครัว
ขนาด 5.00 x 2.00 เมตร
ห้องน้ำ 1
ขนาด 3.00 x 2.00 เมตร
ดาวน์โหลด 3D Sketchup ได้ที่นี่
ดาวน์โหลดไฟล์ PDFแบบก่อสร้าง ได้ที่นี่
ไฟล์ แบบบ้าน .PDF ประกอบด้วย
- แปลนพื้น, แปลนหลังคา
- แปลนโครงสร้าง, แปลนโครงสร้างหลังคา
- แปลนระบบไฟฟ้า
- รูปตัด A-A, รูปตัด B-B
- รูปด้าน ก, รูปด้าน ข
- รูปด้าน ค, รูปด้าน ง
- แบบขยายห้องน้ำ
- แบบขยายโครงสร้าง คสล.
- แบบขยายบ่อเกรอะ
- แบบขยายประตู,หน้าต่าง
- รายการประกอบแบบ
หมายเหตุ : การนำแบบบ้านมาเผยแพร่ต่อสาธารณะ เป็นการนำเสนอเพื่อให้ท่านใช้เป็นแนวทางในการออกแบบบ้าน เนื้อหาในเว็บเป็นการนำเสนอบ้านแบบต่างๆเพื่อประกอบการตัดสินใจ การก่อสร้างบ้านต้องใช้องค์ประกอบหลายอย่างมาประกอบกัน เช่น ภูมิประเทศ สภาพแวดล้อม ฯลฯ และท่านควรปรึกษาผู้เชี่ยวชาญเฉพาะด้าน ดังนั้นทางเราจะไม่รับผิดชอบความเสียหายใดๆ ทางกฏหมายที่เกิดขึ้นจากการก่อสร้าง





ขอบคุณคับ
ตอบลบ