แบบบ้านชั้นเดียวยกพื้น 3 นอน 2 น้ำ
แบบบ้านชั้นเดียวยกพื้น 3 นอน 2 น้ำ
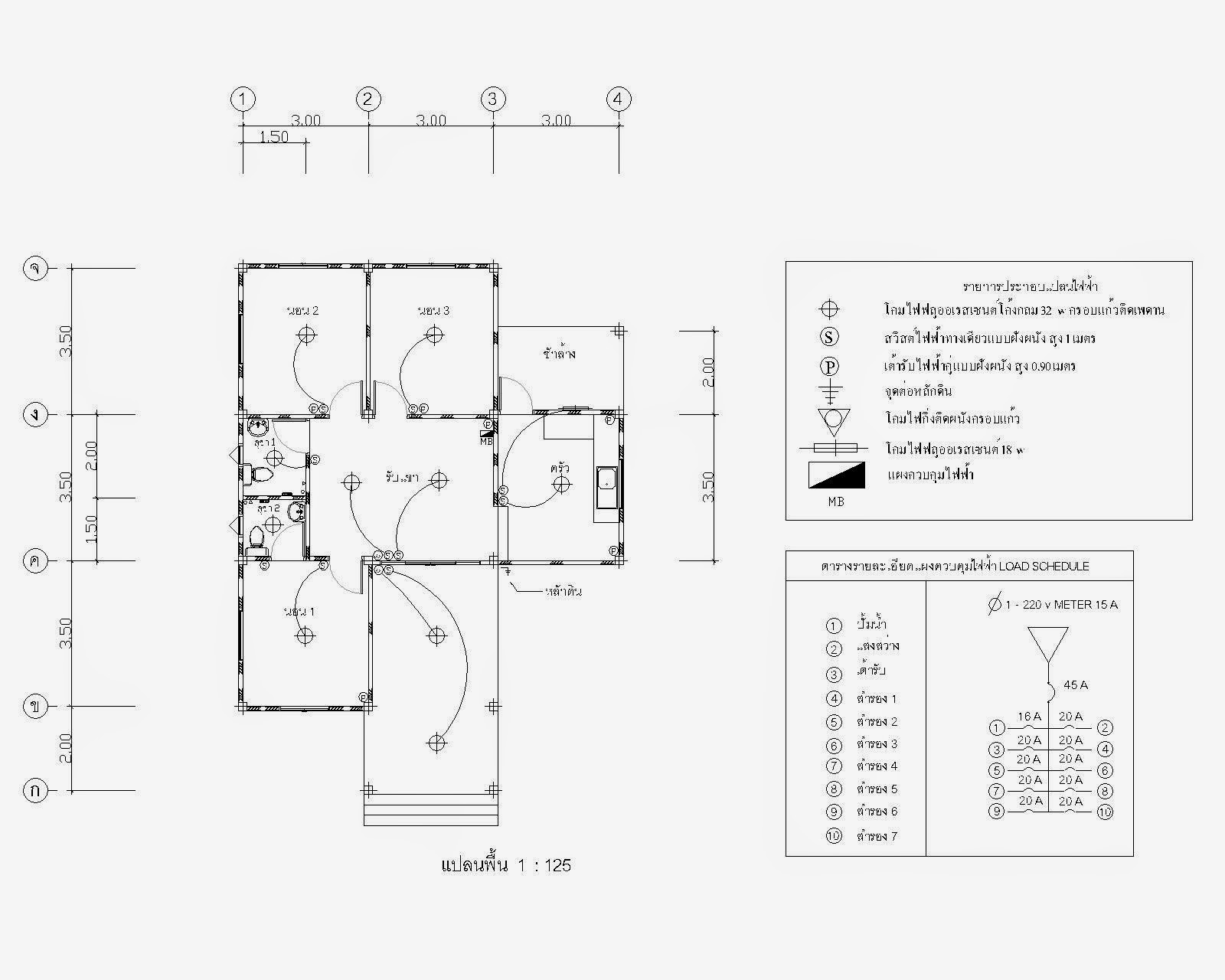
- แปลนพื้น
- แปลนโครงสร้าง
- แปลนรากฐาน
- แปลนหลังคา
- แปลนอะเสหลังคา
- แปลนโครงเหล็กหลังคา
- แปลนขยายห้องน้ำ
- แปลนไฟฟ้า
- แปลนพื้น
- แปลนโครงสร้าง
- แปลนรากฐาน
- แปลนหลังคา
- แปลนอะเสหลังคา
- แปลนโครงเหล็กหลังคา
- แปลนขยายห้องน้ำ
- แปลนไฟฟ้า



ไม่มีความคิดเห็น: