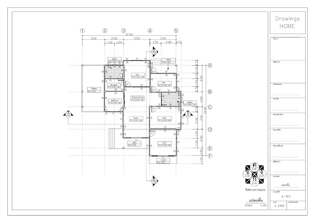
แบบบ้านชั้นเดียว สไตล์โมเดิร์น 3ห้องนอน 2 ห้องน้ำ ขนาดตัวบ้าน 12.00 x 12.50 เมตร แจกฟรี แบบก่อสร้าง และ โมเดลบ้านSketchup
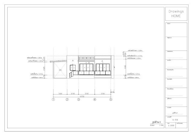
แบบบ้านชั้นเดียว 3 ห้องนอน 2 ห้องน้ำ สไตล์โมเดิร์น..... หน้ากว้าง 12.50 เมตร ลึก 12.00 เมตร พื้นที่ใช้สอยตัวบ้าน 122 ตารางเมตร ......เป็นบ้านยกพื้น บันไดสูง 3 ขั้น ...มีที่จอดรถ.....เป็นบ้านสมัยใหม่ มาในโทนสีขาว หน้าต่างสีชาดำ....แบบบ้านชั้นเดียว สไตล์โมเดิร์น หลังนี้ .....ท่านสามารถดาวน์โหลด แบบก่อสร้าง และ โมเดลบ้านSketchup ไปศึกษา หรือเป็นแนวทางการสร้างบ้านได้ฟรีเลยครับ อยู่ตาม ลิงค์ด้านล่าง

แบบบ้านสไตล์โมเดิร์น
ลักษณะตัวบ้าน : บ้านขั้นเดียวยกพื้นสไตล์โมเดิร์น
องค์ประกอบตัวบ้าน : 3 ห้องนอน 2 ห้องน้ำ ห้องรับแขก ห้องทำงาน เฉลียง ห้องครัว ซักล้าง
ราคาประมาณการก่อสร้าง : 1,456,000 – 2,250,000 บาท
วัสดุอุปกรณ์หลักตัวบ้าน
- หลังคาตัวบ้านมุงเมทัลชีส
- พื้นห้องนอน ห้องรับแขก ห้องครัว ห้องโถง ปูกระเบื้องแกรนิตโต้
- พื้นห้องน้ำ ปูกระเบื้องเคลือบผิวด้าน กันลื่น 20 x 20 cm.
- พื้นเฉลียง ซักล้าง ปูด้วยกระเบื้องเคลือบผิวด้าน ขนาด 40 x 40 cm.
- ผนังห้องก่ออิฐมอญ ฉาบเรียบ ทาสีนำอะคลิลิค
- ผนังห้องน้ำและห้องครัว กรุกรเบื้องเคลือบ ขนาด 20 x 30 cm.
- ฝ้าเพดานโดนรวมใช้ยิปซั่มบอร์ด หนา 9 มิล.
ปล.
งบประมาณในการสร้างบ้านแต่ละหลังที่แตกต่างกันนั้น ขึ้นอยู่กับหลายปัจจัย
ไม่ว่าจะเป็นพื้นที่ก่อสร้าง คุณภาพหรือเกรดของวัสดุ
การว่าจ้างช่างฝีมือหรือผู้รับเหมา ฯลฯ ดังนั้น
ข้อมูลของบ้านหลังนี้จึงมีไว้เพื่อเป็นตัวอย่างให้ศึกษาเท่านั้น ไม่สามารถนำไปเป็นมาตรฐานในการสร้างบ้านอื่นๆ ที่มีสภาพปัจจัยที่แตกต่างกันได้
ดาวน์โหลดไฟล์บ้าน โมเดลบ้านSketchup (เป็นเวอร์ชั่น 2020)
| แปลนพื้น |
ดาวน์โหลดไฟล์บ้าน แบบก่อสร้าง PDF
หมายเหตุ : การนำแบบบ้านมาเผยแพร่ต่อสาธารณะ เป็นการนำเสนอเพื่อให้ท่านใช้เป็นแนวทางในการออกแบบบ้าน เนื้อหาในเว็บเป็นการนำเสนอบ้านแบบต่างๆเพื่อประกอบการตัดสินใจ การก่อสร้างบ้านต้องใช้องค์ประกอบหลายอย่างมาประกอบกัน เช่น ภูมิประเทศ สภาพแวดล้อม ฯลฯ และท่านควรปรึกษาผู้เชี่ยวชาญเฉพาะด้าน ดังนั้นทางเราจะไม่รับผิดชอบความเสียหายใดๆ ทางกฏหมายที่เกิดขึ้นจากการก่อสร้าง
ไม่มีความคิดเห็น: